BAUBESCHREIBUNG

PDF-DOWNLOAD

© SKB-Massivbau 2023
KONTAKT STEFFEN KUHN Maurer- und Betonbaumeister Gepr. Betriebswirt HWK Obere Gerberstraße 2 66679 Losheim am See Telefon: +49 173 8524152 mail to info@SKB-Massivbau.de

Eigentumswohnungen in Rimlingen

Mehr Infos:

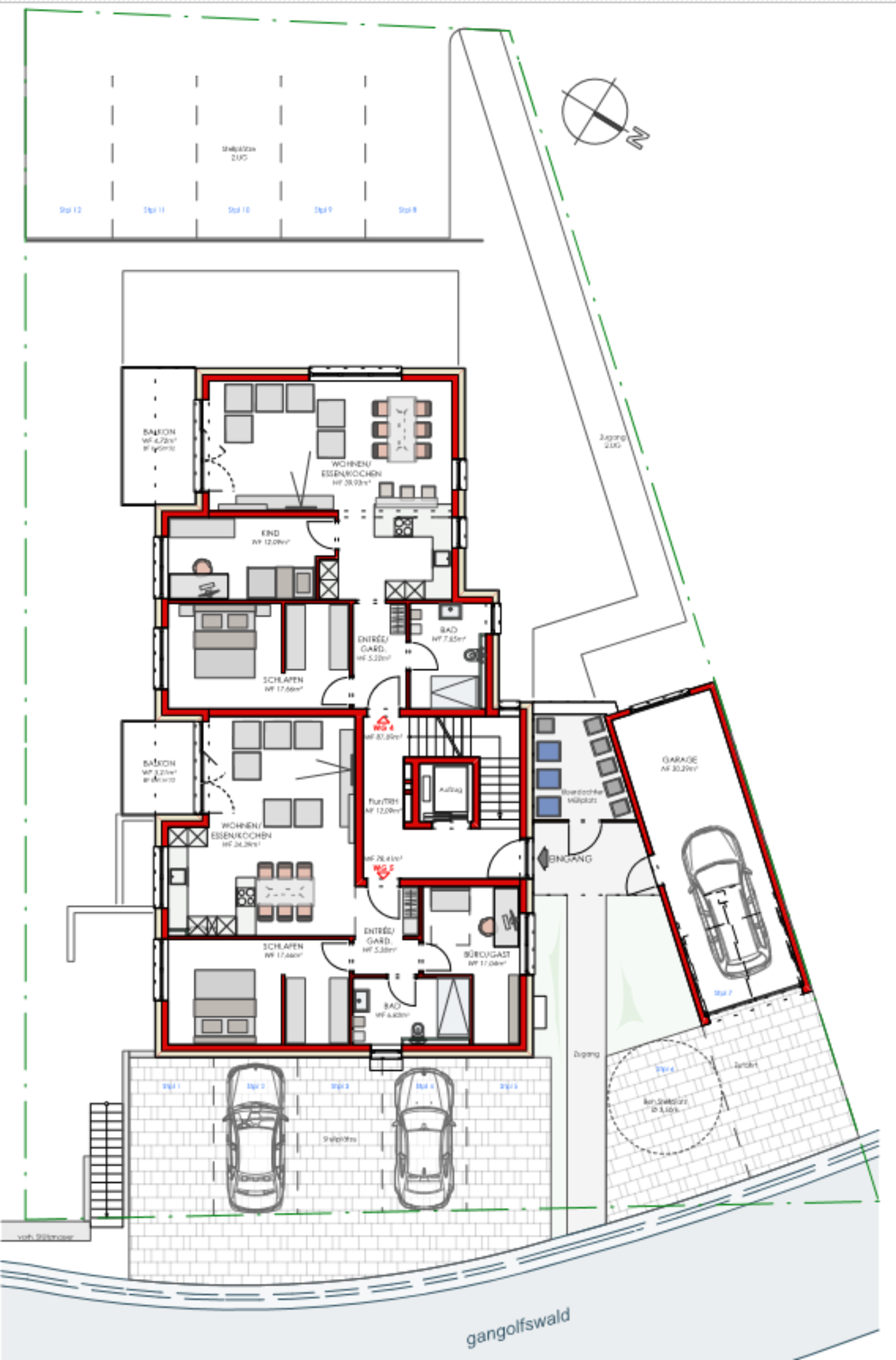
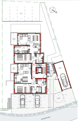
UG1: Wohnung 2 und Wohnung 3
(zum Vergrößern klicken)
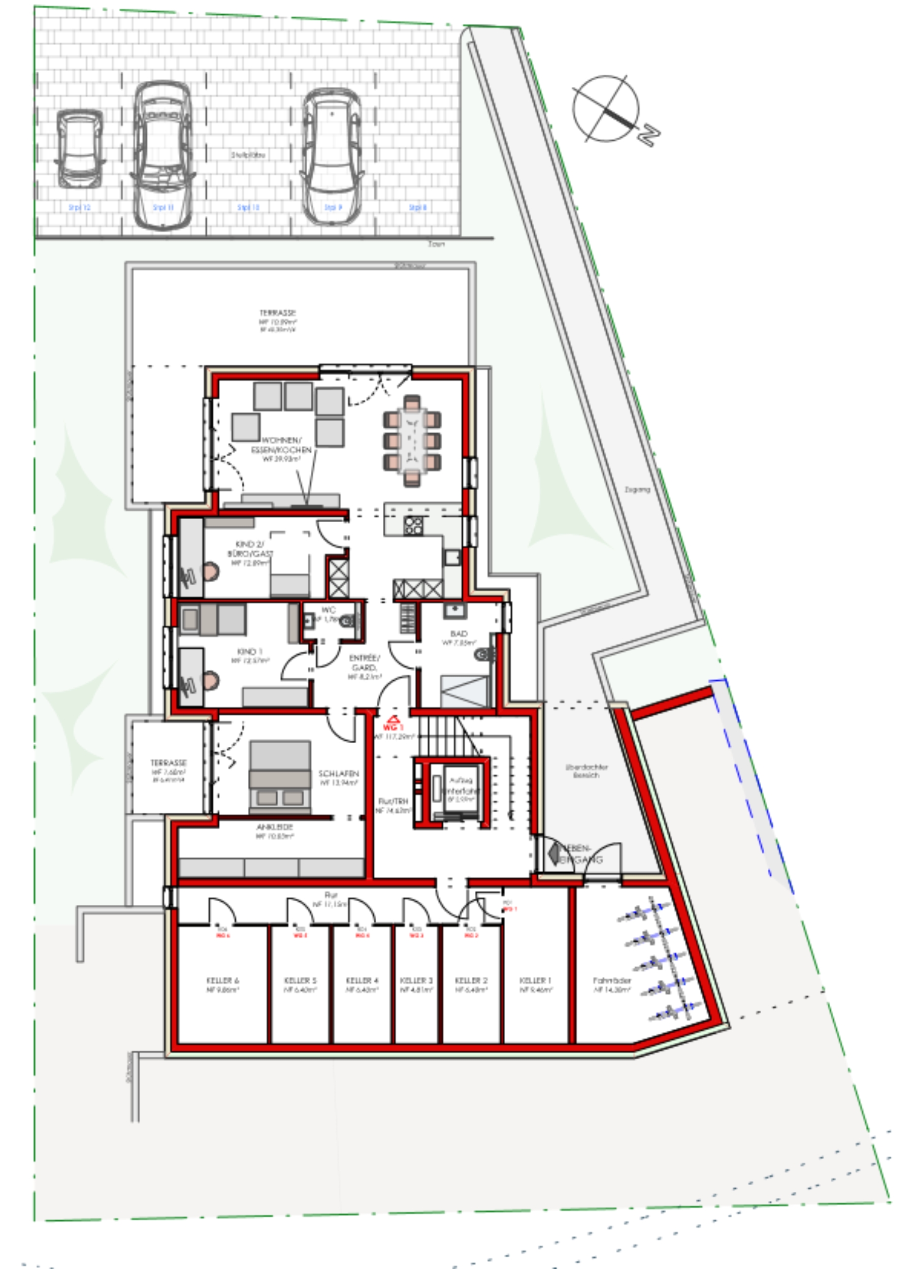
UG2: Wohnung 1
(zum Vergrößern klicken)
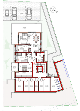
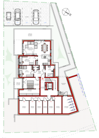
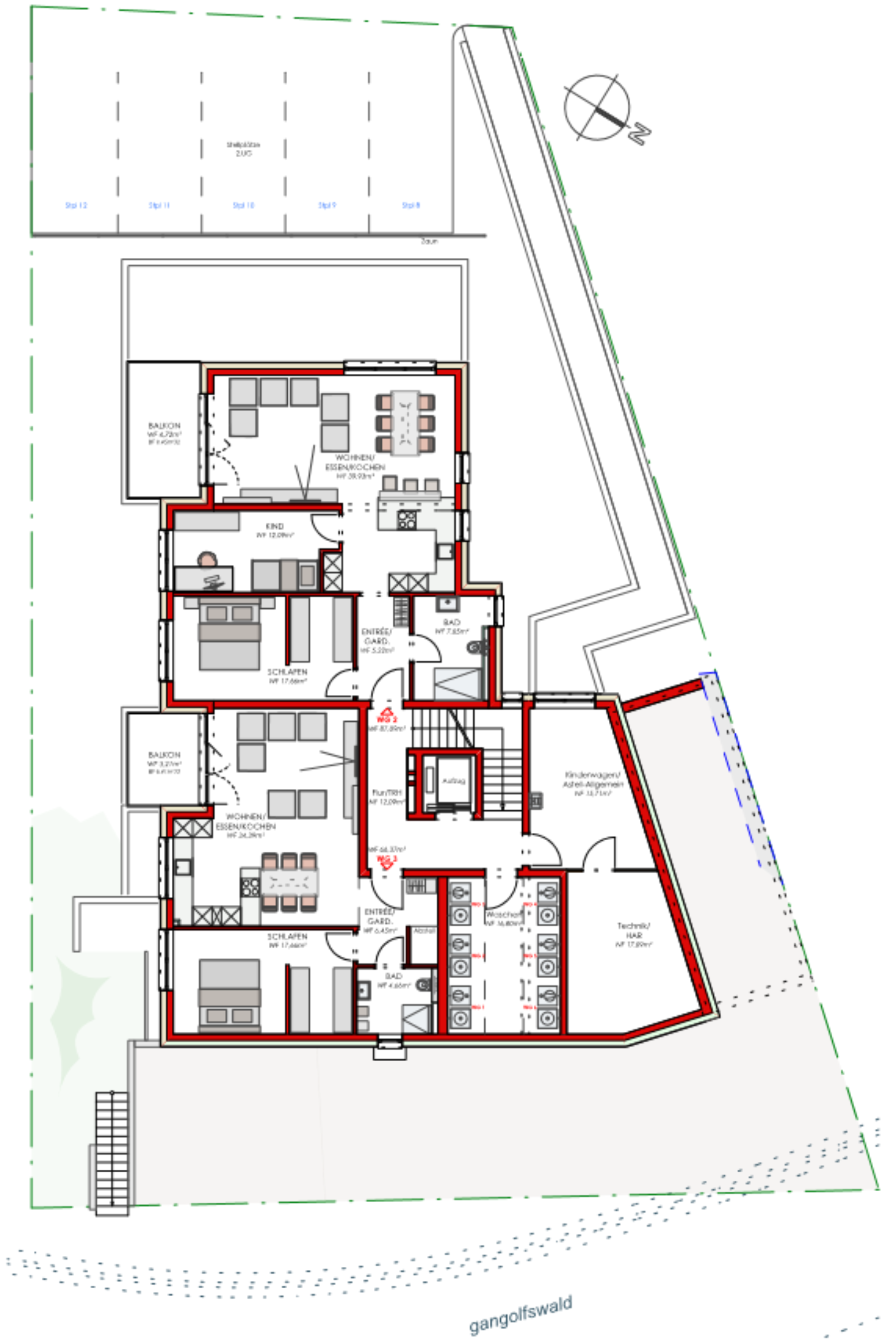
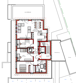
EG: Wohnung 4 und Wohnung 5
(zum Vergrößern klicken)
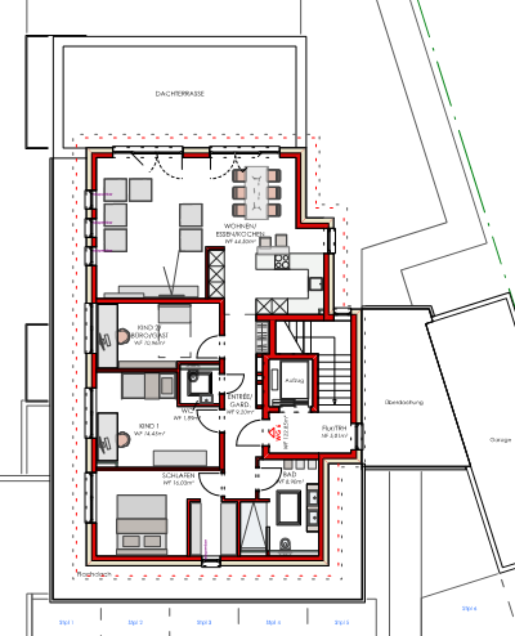
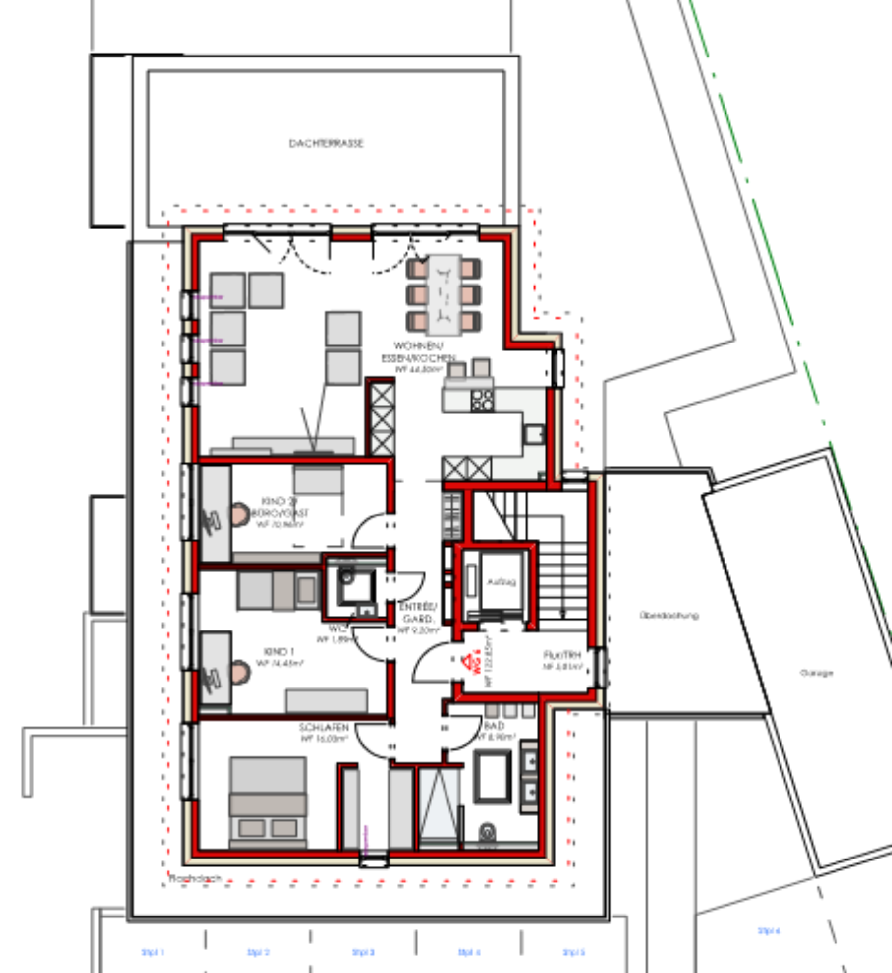
Penthouse
(zum Vergrößern klicken)

Grundrisse:

Besuchen Sie uns bei facebook:
Aktuelle Fotos von der Baustelle Aktuelle Fotos von der Baustelle
Wohnungen 5 und 6 in 3D-Ansicht:
Auf 4 Etagen entsteht ein 6-Familienhaus in Massivbauweise, Laminatboden, Raufasertapete und einem Aufzug der Firma Kone. Die Heizung und die Warmwasserbereitung wird mit eine Wärmepumpe gemäß EnEV realisiert, diese steht neben der Garage. Alle Wohnungen bekommen eine Fußbodenheizung und dezentrale Lüftungsanlagen. Die Balkone erhalten Geländer mit Milchglas. In jeder Wohnung sind Sprechanlagen mit Monitor montiert. Auf dem Dach wird eine zentrale Satellitenschüssel für TV montiert. Das Internet/Telefon wird von der Telekom in den Hausanschlussraum geführt. Das Haus wird nach KFW 55 Standard (EnEV 2016) gebaut, bei entsprechenden Anträgen zur Förderung für das KfW-Effizienzhausprogramm 55 sind wir gerne behilflich. Das Gebäude wird Dekra überwacht mit anschließender Dekra-Zertifizierung Wenn sie eine geänderte Ausführung gegenüber der Baubeschreibung und/oder dem Bauplan möchten, sprechen sie uns gerne an. Es werden 3 Bemusterungstermine festgelegt. Nach notarieller Beurkundung findet der erste Bemusterungstermin für den Rohbau und die Fenster statt. Bei Fertigstellung Rohbau findet der zweite Termin bereits auf der Baustelle zur Festlegung der Anschlüsse statt. Der dritte Termin für die Bemusterung der Innenausstattung erfolgt wenige Tage danach.
MEISTERBETRIEB
KONTAKT STEFFEN KUHN Maurer- und Betonbaumeister Gepr. Betriebswirt HWK Obere Gerberstraße 2 66679 Losheim am See Telefon: +49 173 8524152 mail to info@SKB-Massivbau.de

BAUBESCHREIBUNG

PDF-DOWNLOAD

Eigentumswohnungen

in Rimlingen

Mehr Infos:

UG1: Wohnung 2 und Wohnung 3
(zum Vergrößern klicken)
UG2: Wohnung 1
(zum Vergrößern klicken)
EG: Wohnung 4 und Wohnung 5
(zum Vergrößern klicken)
Penthouse
(zum Vergrößern klicken)

Grundrisse:

Aktuelle Fotos von der Baustelle Aktuelle Fotos von der Baustelle
Besuchen Sie uns bei facebook:
Wohnungen 5 und 6 in 3D-Ansicht:
Auf 4 Etagen entsteht ein 6- Familien- haus in Massivbauweise, Laminatboden, Raufasertapete und einem Aufzug der Firma Kone. Die Heizung und die Warm- wasserbereitung wird mit eine Wärme- pumpe gemäß EnEV realisiert, diese steht neben der Garage. Alle Wohnungen bekommen eine Fußbodenheizung und dezentrale Lüftungsanlagen. Die Bal- kone erhalten Geländer mit Milchglas. In jeder Wohnung sind Sprechanlagen mit Monitor montiert. Auf dem Dach wird eine zentrale Satellitenschüssel für TV montiert. Das Internet/Telefon wird von der Telekom in den Hausanschluss- raum geführt. Das Haus wird nach KFW 55 Standard (EnEV 2016) gebaut, bei entsprechenden Anträgen zur Förderung für das KfW-Effizienzhausprogramm 55 sind wir gerne behilflich. Das Gebäude wird Dekra überwacht mit anschließender Dekra-Zertifizierung Wenn sie eine geänderte Ausführung gegenüber der Baubeschreibung und/ oder dem Bauplan möchten, sprechen sie uns gerne an. Es werden 3 Bemusterungstermine festgelegt. Nach notarieller Beurkund- ung findet der erste Bemusterungs- termin für den Rohbau und die Fenster statt. Bei Fertigstellung Rohbau findet der zweite Termin bereits auf der Bau- stelle zur Festlegung der Anschlüsse statt. Der dritte Termin für die Bemuster- ung der Innenausstattung erfolgt wenige Tage danach.
MEISTERBETRIEB
© SKB-Massivbau 2023